语言选择: 简体中文简体中文 line EnglishEnglish

全自动贴窗机

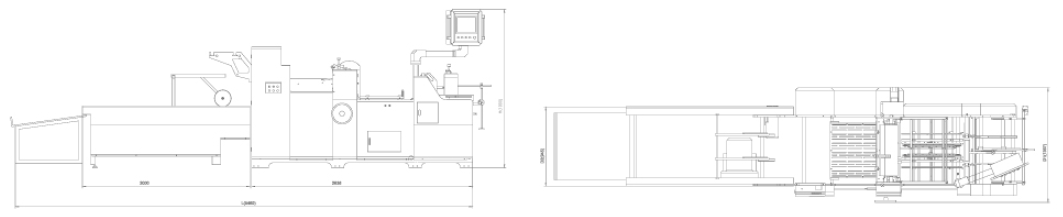
  • LC-740/1060全自动贴窗机(双通道)
LC-740/1060全自动贴窗机(双通道)

LC-740/1060全自动贴窗机(双通道)

♦ 本机型适用于各种纸盒贴窗,彩箱贴膜。例如: 纸巾盒、化妆品盒、玩具盒、牛奶箱等。

♦ 此款机型结构紧凑、调节方便、上胶均匀,贴膜准确牢固,是纸盒贴膜加工的好帮手。

♦ 本机型采用皮带抽纸机构,可不停机送纸。

♦ 再经推规定位,使其定位准确,接着柔性版模块印胶保证了上胶的均匀。

♦ 此时吸气辊筒将一定长度的膜吸住,并将其压合到纸张上。

♦ 最后由压轮压合输出,可在不停机状态下对设备进行调整,提高了生产效率。

image.png

image.png

image.png

新闻资讯

联系我们

电 话:150 1265 0887

手 机:137 9873 3243

邮 箱:346228466@qq.com

网 址:www.lyjxdgs.com

地 址:东莞市清溪镇科技路90号